Capannone in vendita

Calvisano, Strada Provinciale 37
€ 445.000
5 locali 5 locali
640 Mq 640 Mq
3 bagni 3 bagni

Capannone in vendita

Calvisano, Strada Provinciale 37

Questo immobile dispone di soluzioni frazionate

Descrizione annuncio

COSA SAPERE DELL’IMMOBILE

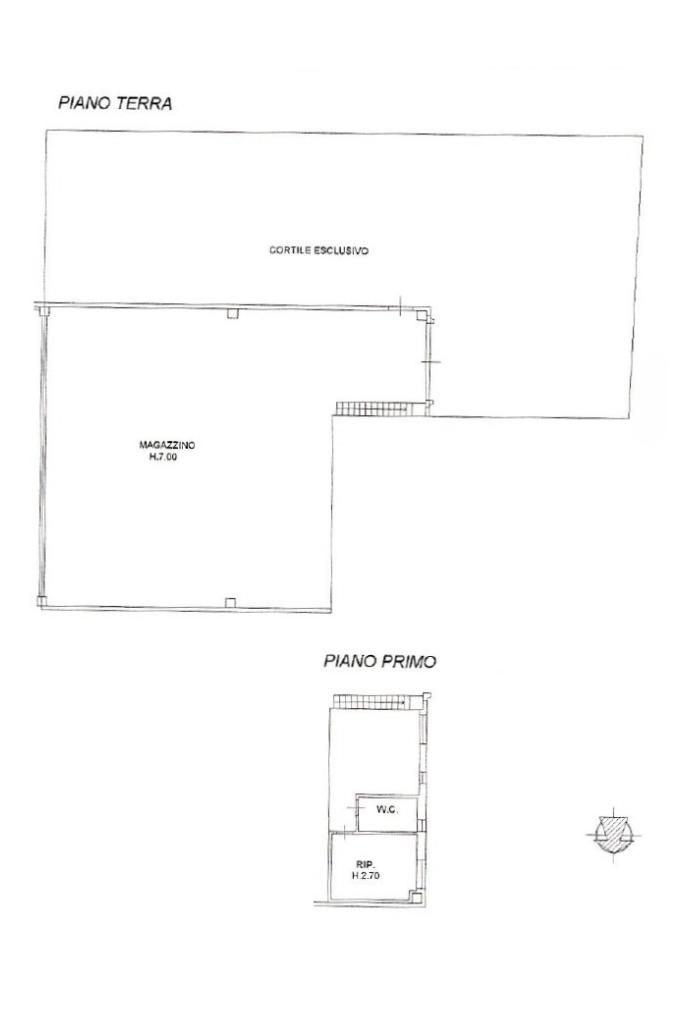
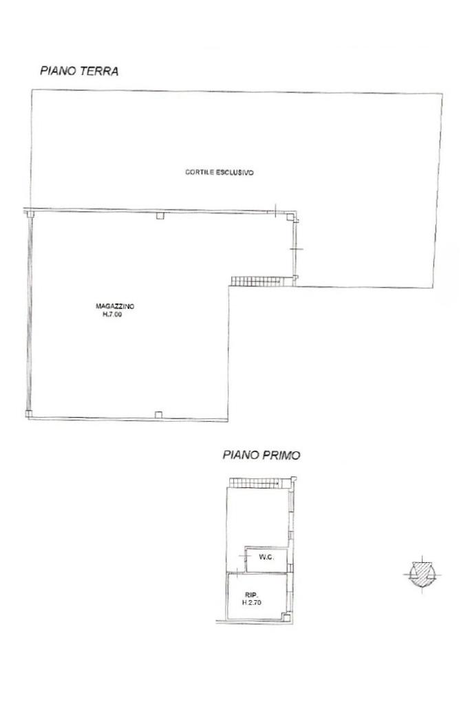
Calvisano, proponiamo in vendita capannone di circa 640 metri quadrati distinti in due moduli, segnaliamo la presenza di ufficio, appartamento e area esterna.

DESCRIZIONE E PARTICOLARITA’

Proponiamo in vendita capannone ad uso magazzino di circa 640 metri quadrati complessivi, suddiviso in due moduli distinti e funzionali. La proprietà dispone inoltre di un ufficio di circa 40 metri quadrati posto al piano primo dotato di servizio igienico, ideale come area direzionale, e di un appartamento al piano terra di circa 50 metri quadrati, suddiviso in due ambienti e dotato anch’esso di servizio igienico.

All’esterno troviamo un’area esterna asfaltata e cintata di circa 610 metri quadrati, comoda per manovre e parcheggi, oltre ad un ulteriore terreno di circa 800 metri quadrati con indice di copertura del 50%, che offre la possibilità di ampliamenti o nuove realizzazioni secondo le necessità.

Il capannone presenta un’altezza interna di 7 metri sotto trave ed è dotato di 3 accessi carrai con cancelli industriali e 3 accessi pedonali. I due moduli sono serviti da impianti elettrici separati: nel primo è presente impianto 380 con potenza di 6 kW, mentre nel secondo è installato impianto 220 con potenza 6 kW, per quanto riguarda l’appartamento troviamo impianto elettrico, di illuminazione riscaldamento e raffrescamento tramite split, garantendo comfort in ogni stagione.

Specifichiamo che l’immobile viene venduto con due contratti di locazione in essere per quanto riguarda: uno dei capannoni da 320 metri quadrati e l’abitazione.

Soluzione completa e versatile, ideale per attività produttive, artigianali o per chi necessita di ampi spazi con possibilità di sviluppo futuro.

UBICAZIONE E CONTESTO

La SP 37 di Calvisano è una strada provinciale strategica che collega il centro abitato alle principali arterie della zona, garantendo spostamenti rapidi verso i comuni limitrofi e le aree industriali circostanti. Caratterizzata da un buon scorrimento del traffico e da un contesto prevalentemente produttivo, la SP 37 offre un collegamento efficiente e agevole, rendendo l’area facilmente raggiungibile sia per mezzi leggeri che pesanti.

Mostra tutto

Nelle vicinanze

Trasporto pubblico Trasporto pubblico
Trasporto pubblico
530 m
Calvisano
Calvisano
990 m
Viadana Bresciana
Viadana Bresciana
2,9 Km
Scuole Scuole
Scuola elementare
370 m
Scuole
710 m
Scuola primaria di Viadana
2,7 Km
Bar Bar
Circolo ACLI
980 m
Ristoranti Ristoranti
Ristorante pizzeria al capriccio
320 m
Lago Solitudo
2,1 Km
Mostra tutto

Caratteristiche

Rif.:
61141883
Piano:
1 di 2 (Piano su più livelli)
Condizionamento:
Autonomo
Ascensore:
No
Riscaldamento:
Autonomo
Giardino:
Privato
Mostra tutto
Prezzo Prezzo
€ 445.000
Rata mutuo Rata mutuo
€ 2.104 / mese
Spese annue Spese annue
€ 0
Proponi il tuo prezzoProponi il tuo prezzo

Altre caratteristiche

Descrizione dei locali
Bagno Con Finestra

Classe Energetica

Questo immobile è esente da classe energetica
Anno di costruzione:
2006
Riscaldamento:
Autonomo
Tipo impianto:
Ad aria
Tipo alimentazione:
Metano

Ti interessa visionare l'immobile?

Fissa un appuntamento  Fissa un appuntamento

Richiedi informazioni

Clicca su Leggi per aprire l'informativa
* Questi campi sono obbligatori

Calcola il tuo mutuo

Semplice e senza impegno
Anticipo

( % )
Mutuo

( % )

pochi semplici passi

inserisci i tuoi dati
Questionario completato
Grazie per aver richiesto un appuntamento senza impegno con un nostro Consulente del Credito e Assicurativo.

Hai inserito correttamente tutti i dati necessari e a breve riceverai una e-mail con un link da convalidare per inviare i tuoi dati.
Affiliato
La Commerciale Real Estate Srl
Via Mons. Moreni, 83 25018 Montichiari (BS)

Il nostro staff


  • Enrico Lopedoto
    Affiliato

  • Daria Elena Iacobescu
    Responsabile

  • Matteo Pia
    Collaboratore

  • Melisa Tafilaku
    Coordinatrice

  • Eric Tamassia
    Collaboratore
Via Mons. Moreni, 83 25018 Montichiari (BS)
Zona: Montichiari-Castiglione D/S-Carpenedolo-Calcinato P/San Marco
Mostra su mappa
Orari: Lunedì - Venerdì 9.00-12.30 / 15.00-19.30Sabato9.00-12.30
Affiliato
La Commerciale Real Estate Srl
Via Mons. Moreni, 83 25018 Montichiari (BS)

2026 Tecnocasa Franchising S.p.A. - P. IVA 08365160152 - Via Monte Bianco 60/A 20089 Rozzano (MI). Ogni agenzia ha un proprio titolare ed è autonoma. Privacy policy | Policy utilizzo | Cookie policy