Capannone in vendita

Calvisano, Via Sp 37
€ 350.000
1 locale 1 locale
580 Mq 580 Mq

Capannone in vendita

Calvisano, Via Sp 37

Descrizione annuncio

COSA SAPERE DELL’IMMOBILE

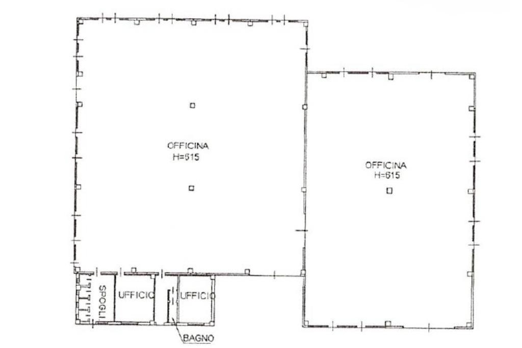
Calvisano, proponiamo in vendita capannone industriale. L’immobile è dotato di area esterna di circa 1500 metri quadrati e dispone di un accesso carraio e uno pedonale. Presenti impianto di riscaldamento, impianto elettrico, illuminazione LED, impianto di allarme, due carroponti, due compressori e servizi igienici con docce.

DESCRIZIONE E PARTICOLARITA’

Proponiamo in vendita capannone industriale costruito nel 2006 situato in zona comoda e facilmente accessibile nel comune di Calvisano. La proprietà dispone di un’area esterna di circa 1500 metri quadri adatta alla manovra di mezzi pesanti, alle operazioni di carico e scarico e a parcheggio.

Il capannone ha un’altezza interna di 8 metri e dispone di un accesso carraio e di un accesso pedonale. L’immobile è dotato di impianto di riscaldamento, impianto elettrico e impianto di illuminazione a LED oltre a impianto di allarme e presenza di estintori interni.

All’interno sono presenti due carroponti e due compressori distribuiti su tutto il capannone. La proprietà è completata da servizi igienici con due bagni e docce a disposizione del personale.

Soluzione adatta ad attività artigianali, produttive o di deposito che necessitano di uno spazio funzionale e ben attrezzato.

UBICAZIONE E CONTESTO

L’immobile è situato nel comune di Calvisano in zona produttiva e artigianale. La posizione consente un facile accesso alle principali vie di collegamento della zona risultando comoda per attività produttive, logistiche e artigianali.

Mostra tutto

Nelle vicinanze

Trasporto pubblico Trasporto pubblico
Trasporto pubblico
1,4 Km
Calvisano
Calvisano
1,3 Km
Scuole Scuole
Scuola elementare
1,1 Km
Scuole
1,5 Km
Bar Bar
Circolo ACLI
1,2 Km
Bar
3,0 Km
Ristoranti Ristoranti
Ristorante pizzeria al capriccio
610 m
Lago Solitudo
2,2 Km
Ristoranti
3,0 Km
Mostra tutto

Caratteristiche

Rif.:
61182395
Piano:
1 di 1 (Piano terra)
Posti auto:
10
Condizionamento:
Assente
Ascensore:
No
Riscaldamento:
Autonomo
Mostra tutto
Prezzo Prezzo
€ 350.000
Rata mutuo Rata mutuo
€ 1.655 / mese
Spese annue Spese annue
€ 0
Proponi il tuo prezzoProponi il tuo prezzo

Altre caratteristiche

Classe Energetica

Questo immobile è esente da classe energetica
Anno di costruzione:
2006
Riscaldamento:
Autonomo
Tipo impianto:
Ad aria
Tipo alimentazione:
Aria

Ti interessa visionare l'immobile?

Fissa un appuntamento  Fissa un appuntamento

Richiedi informazioni

Clicca su Leggi per aprire l'informativa
* Questi campi sono obbligatori

Calcola il tuo mutuo

Semplice e senza impegno
Anticipo

( % )
Mutuo

( % )

pochi semplici passi

inserisci i tuoi dati
Questionario completato
Grazie per aver richiesto un appuntamento senza impegno con un nostro Consulente del Credito e Assicurativo.

Hai inserito correttamente tutti i dati necessari e a breve riceverai una e-mail con un link da convalidare per inviare i tuoi dati.
Affiliato
La Commerciale Real Estate Srl
Via Mons. Moreni, 83 25018 Montichiari (BS)

Il nostro staff


  • Enrico Lopedoto
    Affiliato

  • Daria Elena Iacobescu
    Responsabile

  • Matteo Pia
    Collaboratore

  • Melisa Tafilaku
    Coordinatrice

  • Eric Tamassia
    Collaboratore
Via Mons. Moreni, 83 25018 Montichiari (BS)
Zona: Montichiari-Castiglione D/S-Carpenedolo-Calcinato P/San Marco
Mostra su mappa
Orari: Lunedì - Venerdì 9.00-12.30 / 15.00-19.30Sabato9.00-12.30
Affiliato
La Commerciale Real Estate Srl
Via Mons. Moreni, 83 25018 Montichiari (BS)

2026 Tecnocasa Franchising S.p.A. - P. IVA 08365160152 - Via Monte Bianco 60/A 20089 Rozzano (MI). Ogni agenzia ha un proprio titolare ed è autonoma. Privacy policy | Policy utilizzo | Cookie policy