Capannone in vendita

Carpenedolo, Via Carlo Lodetti
€ 470.000
3 locali 3 locali
1100 Mq 1100 Mq
3 bagni 3 bagni

Capannone in vendita

Carpenedolo, Via Carlo Lodetti

Descrizione annuncio

COSA SAPERE DELL'IMMOBILE

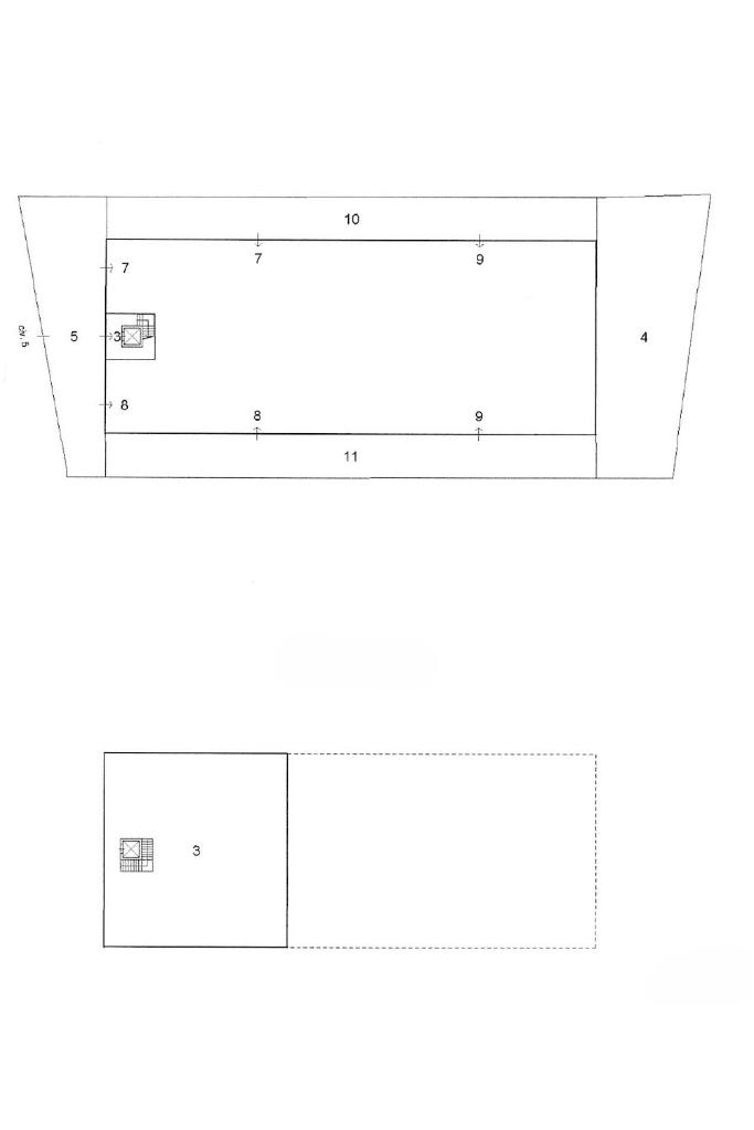
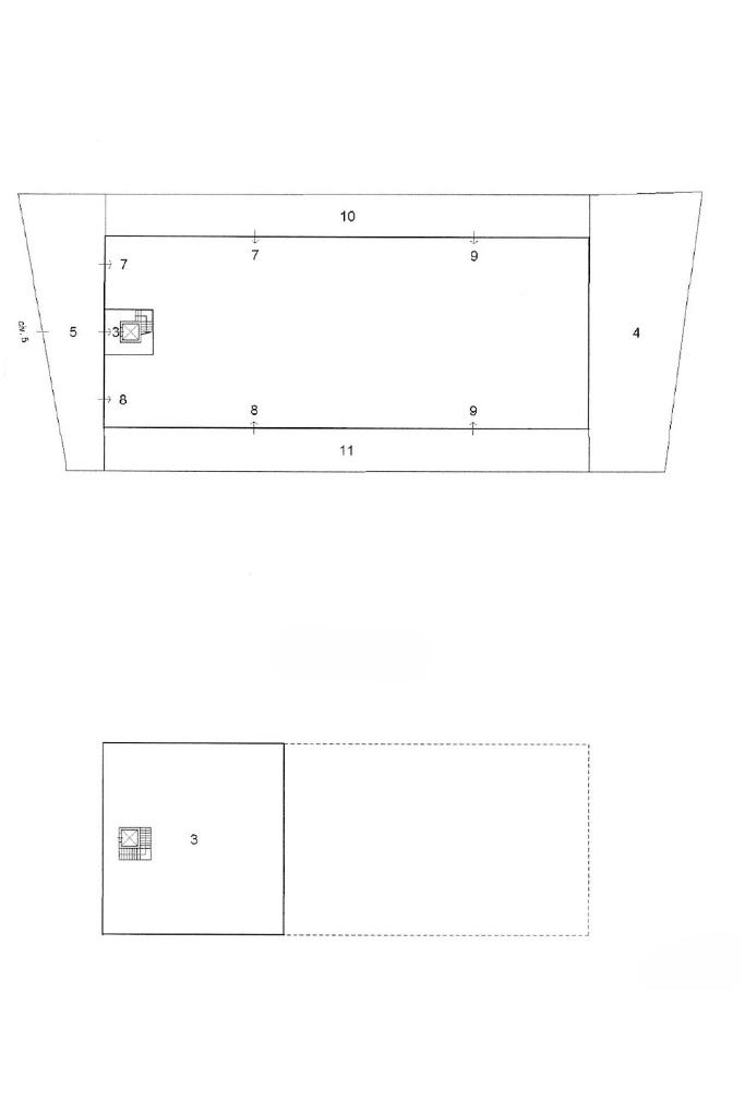
A Carpenedolo si propone in vendita capannone commerciale con magazzino e soppalco, costruito nel 2006, con una superficie complessiva di circa 1100 metri quadrati, di cui 500 metri quadrati destinati ad area commerciale e 500 metri quadrati a magazzino.

DESCRIZIONE E PARTICOLARITA'

Capannone commerciale situato a Carpenedolo, costruito nel 2006, ideale per numerose tipologie di attività commerciali e professionali. L’immobile si sviluppa su una superficie complessiva di circa 1100 metri quadrati ed è composto da 500 metri quadrati destinati ad area commerciale e 500 metri quadrati adibiti a magazzino, oltre alla presenza di un soppalco che amplia ulteriormente gli spazi utilizzabili.

All’interno della struttura sono presenti tre servizi igienici e un locale spogliatoio. L’immobile necessita di interventi di ristrutturazione, offrendo così la possibilità di personalizzare gli spazi in base alle proprie esigenze operative o imprenditoriali.

La disposizione interna e le dimensioni rendono la soluzione particolarmente adatta per attività commerciali, showroom, depositi, laboratori o sedi operative di aziende. La proprietà è inoltre dotata di numerosi parcheggi, elemento che garantisce comodità e facilità di accesso sia per clienti che per il personale. La posizione nel comune di Carpenedolo rappresenta un ulteriore punto di forza per chi è alla ricerca di una struttura ampia e versatile in una zona ben servita.

UBICAZIONE E CONTESTO

L’immobile è situato nel comune di Carpenedolo, in una zona facilmente raggiungibile e ben collegata alle principali vie di comunicazione del territorio. Il contesto è caratterizzato dalla presenza di attività commerciali, artigianali e produttive, rendendo la soluzione particolarmente adatta per aziende che necessitano di spazi ampi e funzionali.

Mostra tutto

Nelle vicinanze

Trasporto pubblico Trasporto pubblico
Fermata APAM
Fermata APAM
220 m
Scuole Scuole
Istituto Comprensivo di Carpenedolo
870 m
Scuole
890 m
Scuola Materna IV Novembre
1,1 Km
Supermercati Supermercati
Centro Commerciale Italmark
190 m
Supermercati
210 m
Eurospin
560 m
Penny Market
1,2 Km
LIDL
1,3 Km
Mostra tutto

Caratteristiche

Rif.:
61188635
Piano:
1 di 1 (Piano terra)
Condizionamento:
Assente
Ascensore:
No
Riscaldamento:
Assente
Libero:
Mostra tutto
Prezzo Prezzo
€ 470.000
Rata mutuo Rata mutuo
€ 2.215 / mese
Spese annue Spese annue
€ 0
Proponi il tuo prezzoProponi il tuo prezzo

Altre caratteristiche

Classe Energetica

Questo immobile è esente da classe energetica
Anno di costruzione:
2006
Riscaldamento:
Assente

Ti interessa visionare l'immobile?

Fissa un appuntamento  Fissa un appuntamento

Richiedi informazioni

Clicca su Leggi per aprire l'informativa
* Questi campi sono obbligatori

Calcola il tuo mutuo

Semplice e senza impegno
Anticipo

( % )
Mutuo

( % )

pochi semplici passi

inserisci i tuoi dati
Questionario completato
Grazie per aver richiesto un appuntamento senza impegno con un nostro Consulente del Credito e Assicurativo.

Hai inserito correttamente tutti i dati necessari e a breve riceverai una e-mail con un link da convalidare per inviare i tuoi dati.
Affiliato
La Commerciale Real Estate Srl
Via Mons. Moreni, 83 25018 Montichiari (BS)

Il nostro staff


  • Enrico Lopedoto
    Affiliato

  • Daria Elena Iacobescu
    Responsabile

  • Matteo Pia
    Collaboratore

  • Melisa Tafilaku
    Coordinatrice

  • Eric Tamassia
    Collaboratore
Via Mons. Moreni, 83 25018 Montichiari (BS)
Zona: Montichiari-Castiglione D/S-Carpenedolo-Calcinato P/San Marco
Mostra su mappa
Orari: Lunedì - Venerdì 9.00-12.30 / 15.00-19.30Sabato9.00-12.30
Affiliato
La Commerciale Real Estate Srl
Via Mons. Moreni, 83 25018 Montichiari (BS)

2026 Tecnocasa Franchising S.p.A. - P. IVA 08365160152 - Via Monte Bianco 60/A 20089 Rozzano (MI). Ogni agenzia ha un proprio titolare ed è autonoma. Privacy policy | Policy utilizzo | Cookie policy