Negozio in vendita

Carpenedolo, Via XX Settembre
€ 110.000
2 locali 2 locali
73 Mq 73 Mq
2 bagni 2 bagni

Negozio in vendita

Carpenedolo, Via XX Settembre

Descrizione annuncio

COSA SAPERE DELL’IMMOBILE

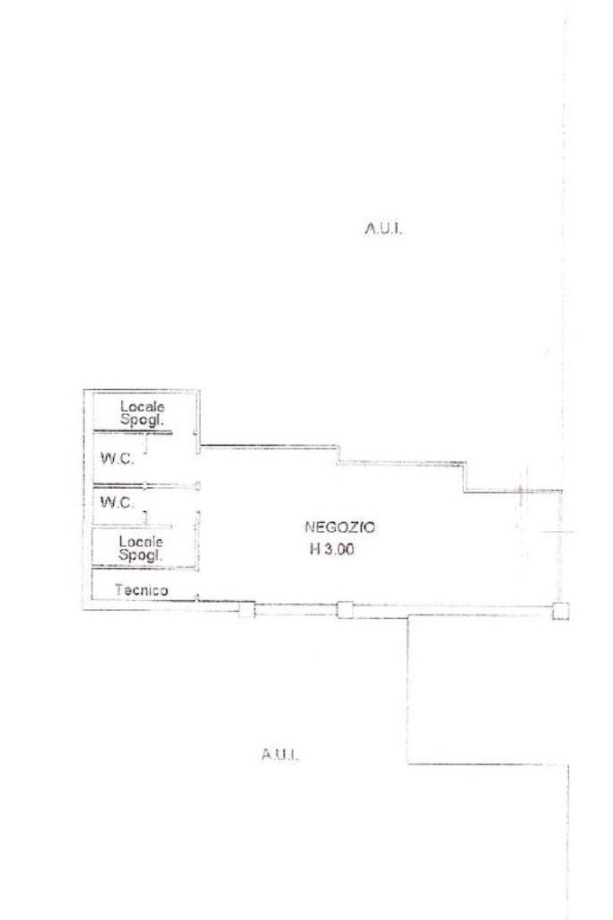
Carpenedolo, proponiamo in vendita locale commerciale posto al piano terra di circa 73 metri quadrati, dotato di molti parcheggi frontali.

DESCRIZIONE E PARTICOLARITA’

In buona posizione, proponiamo in vendita negozio di circa 73 metri quadrati posto al piano terra, caratterizzato da ambienti moderni, luminosi e versatili. La disposizione open space offre ampie possibilità di personalizzazione, rendendolo ideale per attività commerciali o studi professionali.

L’immobile dispone di doppi servizi igienici, di cui uno a norma per disabili, e di spogliatoi garantendo praticità e comfort. Il negozio è dotato di impianto elettrico e di illuminazione, con riscaldamento e raffrescamento tramite split. La sua posizione assicura visibilità e facile accesso, grazie anche ai numerosi parcheggi pubblici frontali. Un’opportunità ideale per chi cerca un ambiente funzionale e subito operativo, in un contesto comodo e ben servito.

UBICAZIONE E CONTESTO

Il locale da noi proposto è ubicato in via XX Settembre a Carpenedolo, zona di passaggio, ben servita di parcheggi. E’ caratterizzata da un’ottima visibilità e facile accesso. L’area è ben servita anche da attività commerciali, rendendola una posizione strategica sia per chi desidera avviare un’attività sia per chi cerca un punto vendita in un contesto dinamico e frequentato.

Mostra tutto

Nelle vicinanze

Trasporto pubblico Trasporto pubblico
Fermata APAM
Fermata APAM
190 m
Scuole Scuole
Istituto Comprensivo di Carpenedolo
520 m
Scuole
550 m
Scuola Materna IV Novembre
790 m
Supermercati Supermercati
Supermercati
160 m
Centro Commerciale Italmark
200 m
Eurospin
810 m
Penny Market
870 m
LIDL
1,2 Km
Mostra tutto

Caratteristiche

Rif.:
61132302
Piano:
1 di 3 (Piano terra)
Posti auto:
10
Condizionamento:
Autonomo
Ascensore:
No
Riscaldamento:
Autonomo
Mostra tutto
Prezzo Prezzo
€ 110.000
Rata mutuo Rata mutuo
€ 520 / mese
Proponi il tuo prezzoProponi il tuo prezzo

Classe Energetica

D
D
D
D
D
D
D
D
D
EP globale non rinnovabile:
354.30 kW h/m² anno
EP globale rinnovabile:
163.31 kW h/m² anno
EP invernale del fabbricato:
EP estiva del fabbricato:
Anno di costruzione:
1990
Riscaldamento:
Autonomo
Tipo impianto:
Ad aria
Tipo alimentazione:
Metano

Ti interessa visionare l'immobile?

Fissa un appuntamento  Fissa un appuntamento

Richiedi informazioni

Clicca su Leggi per aprire l'informativa
* Questi campi sono obbligatori

Calcola il tuo mutuo

Semplice e senza impegno
Anticipo

( % )
Mutuo

( % )

pochi semplici passi

inserisci i tuoi dati
Questionario completato
Grazie per aver richiesto un appuntamento senza impegno con un nostro Consulente del Credito e Assicurativo.

Hai inserito correttamente tutti i dati necessari e a breve riceverai una e-mail con un link da convalidare per inviare i tuoi dati.
Affiliato
La Commerciale Real Estate Srl
Via Mons. Moreni, 83 25018 Montichiari (BS)

Il nostro staff


  • Enrico Lopedoto
    Affiliato

  • Daria Elena Iacobescu
    Responsabile

  • Matteo Pia
    Collaboratore

  • Melisa Tafilaku
    Coordinatrice

  • Eric Tamassia
    Collaboratore
Via Mons. Moreni, 83 25018 Montichiari (BS)
Zona: Montichiari-Castiglione D/S-Carpenedolo-Calcinato P/San Marco
Mostra su mappa
Orari: Lunedì - Venerdì 9.00-12.30 / 15.00-19.30Sabato9.00-12.30
Affiliato
La Commerciale Real Estate Srl
Via Mons. Moreni, 83 25018 Montichiari (BS)

2026 Tecnocasa Franchising S.p.A. - P. IVA 08365160152 - Via Monte Bianco 60/A 20089 Rozzano (MI). Ogni agenzia ha un proprio titolare ed è autonoma. Privacy policy | Policy utilizzo | Cookie policy