Negozio in vendita

Castiglione Delle Stiviere, Via levadello
4 locali 4 locali
265 Mq 265 Mq
4 bagni 4 bagni

Negozio in vendita

Castiglione Delle Stiviere, Via levadello

Descrizione annuncio

COSA SAPERE DELL'IMMOBILE

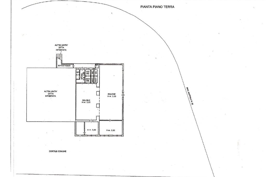
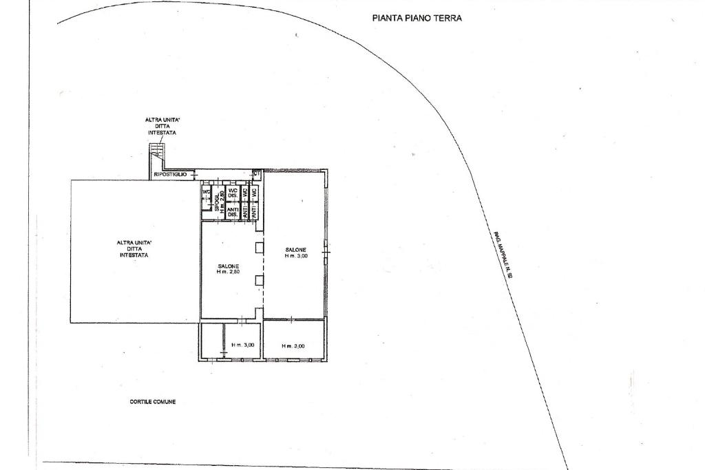
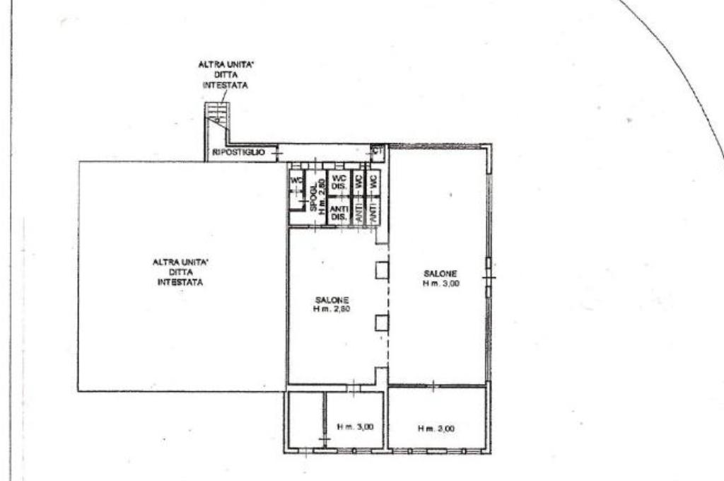
In posizione strategica di massima visibilità, proponiamo in vendita locale commerciale ad uso negozio con superficie commerciale di 265 metri quadrati, dotato di servizi igienici e area esterna di proprietà.

DESCRIZIONE E PARTICOLARITA'

L'immobile si sviluppa interamente su un unico piano ed è composto da due grandi sale openspace, comunicanti e facilmente personalizzabili, locali accessori ad uso ufficio, deposito e ripostiglio e un blocco di servizi igienici con quattro servizi di cui uno a norma disabili. La proprietà eè completata da un'ampia area esterna di circa 900 metri quadrati ideale per parcheggio, esposizione veicoli, dehors o spazi operativi all'aperto.

Grazie alle ampie vetrine poste fronte strada e alla collocazione sulla rotatoria, l'immobile garantisce un'eccellente visibilità commerciale e facilità di accesso. L'immobile si presta per attività di ristorazione/bar/pizzerie, concessionari o rivendita veicoli, showroom espositivo, uffici di rappresentanza o attività commerciali che necessitano di alta visibilità.

UBICAZIONE E CONTESTO

L'immobile è situato a Castiglione delle Stiviere, in posizione di forte passaggio e massima visibilità, direttamente affacciato su una rotatoria e in adiacenza alla tangenziale SP 236 Brescia-Mantova.

Mostra tutto

Nelle vicinanze

Trasporto pubblico Trasporto pubblico
Trasporto pubblico
1,6 Km
Ricariche auto elettriche Ricariche auto elettriche
evway Donatori di Sangue
1,3 Km
Farmacia Farmacia
Farmacia La Gozzolina
590 m
Erasmo Pigotta
1,6 Km
Mostra tutto

Caratteristiche

Rif.:
61172369
Piano:
1 di 2 (Piano terra)
Posti auto:
20
Condizionamento:
Autonomo
Ascensore:
No
Riscaldamento:
Autonomo
Mostra tutto
Prezzo Prezzo
€ 250.000
Rata mutuo Rata mutuo
€ 1.182 / mese
Spese annue Spese annue
€ 0
Anche in affitto a
Proponi il tuo prezzoProponi il tuo prezzo

Altre caratteristiche

Descrizione dei locali
Bagno antibagno

Classe Energetica

Questo immobile è esente da classe energetica
Anno di costruzione:
1980
Riscaldamento:
Autonomo
Tipo impianto:
A radiatori
Tipo alimentazione:
Metano

Ti interessa visionare l'immobile?

Fissa un appuntamento  Fissa un appuntamento

Richiedi informazioni

Clicca su Leggi per aprire l'informativa
* Questi campi sono obbligatori

Calcola il tuo mutuo

Semplice e senza impegno
Anticipo

( % )
Mutuo

( % )

pochi semplici passi

inserisci i tuoi dati
Questionario completato
Grazie per aver richiesto un appuntamento senza impegno con un nostro Consulente del Credito e Assicurativo.

Hai inserito correttamente tutti i dati necessari e a breve riceverai una e-mail con un link da convalidare per inviare i tuoi dati.
Affiliato
La Commerciale Real Estate Srl
Via Mons. Moreni, 83 25018 Montichiari (BS)

Il nostro staff


  • Enrico Lopedoto
    Affiliato

  • Daria Elena Iacobescu
    Responsabile

  • Matteo Pia
    Collaboratore

  • Melisa Tafilaku
    Coordinatrice

  • Eric Tamassia
    Collaboratore
Via Mons. Moreni, 83 25018 Montichiari (BS)
Zona: Montichiari-Castiglione D/S-Carpenedolo-Calcinato P/San Marco
Mostra su mappa
Orari: Lunedì - Venerdì 9.00-12.30 / 15.00-19.30Sabato9.00-12.30
Affiliato
La Commerciale Real Estate Srl
Via Mons. Moreni, 83 25018 Montichiari (BS)

2026 Tecnocasa Franchising S.p.A. - P. IVA 08365160152 - Via Monte Bianco 60/A 20089 Rozzano (MI). Ogni agenzia ha un proprio titolare ed è autonoma. Privacy policy | Policy utilizzo | Cookie policy