Ufficio in vendita

Castiglione Delle Stiviere, Via Giuseppe Mazzini
€ 240.000
1 locale 1 locale
178 Mq 178 Mq
1 bagno 1 bagno

Ufficio in vendita

Castiglione Delle Stiviere, Via Giuseppe Mazzini

Descrizione annuncio

COSA SAPERE DELL'IMMOBILE

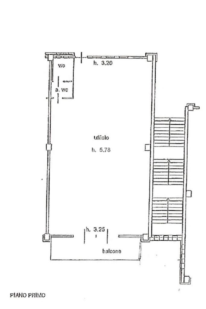
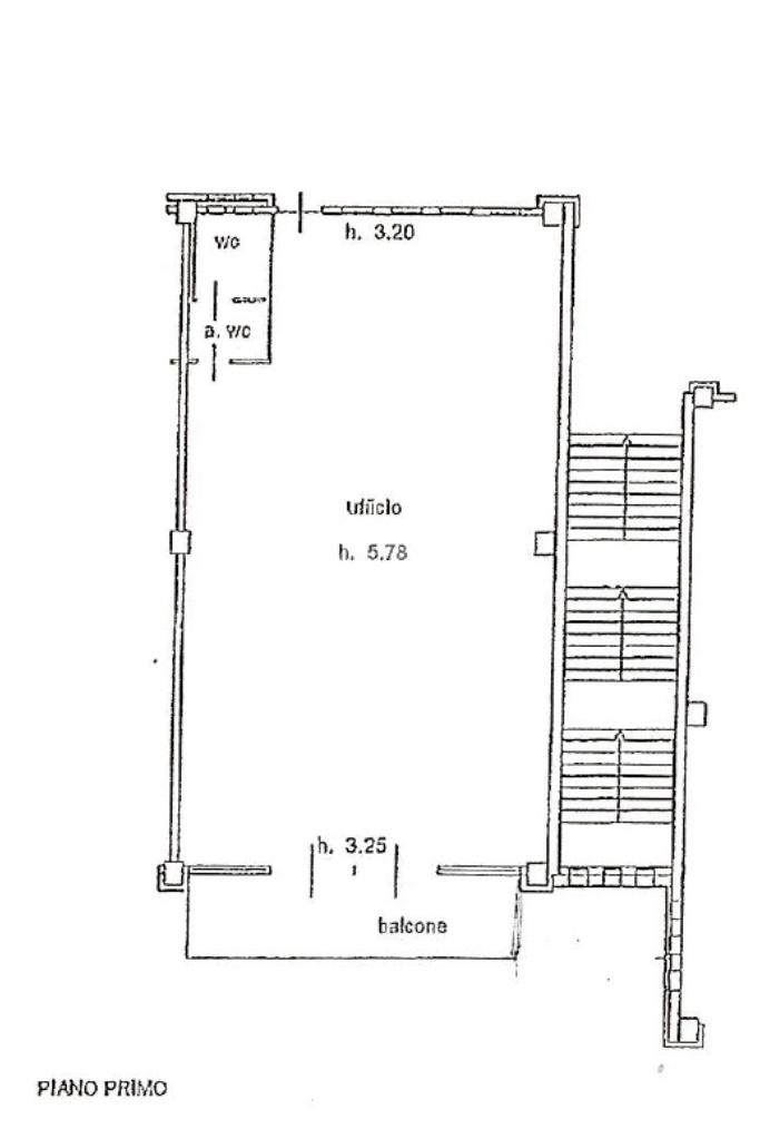
In un contesto commerciale molto visibile, sull'arteria stradale principale di Castiglione delle Stiviere, proponiamo in vendita unità immobiliare ad uso ufficio con superficie coperta di 178 metri quadrati.

DESCRIZIONE E PARTICOLARITA'

Posta al primo piano di un complesso polifunzionale che si sviluppa su due piani fuori terra e comprendente attività commerciali di massima importanza, l'unità immobiliare gode di un'ottima visibilità. Al piano terra sono presenti attività di vendita al dettaglio di grande distribuzione (alimentari, prodotti per cura della persona e la casa), negozi di telefonia mentre al piano superiore sono presenti studi professionali e uffici di rappresentanza commerciale. Il primo piano è munito di accesso carraio e un ampio parcheggio privato ad uso pubblico, oltre all'accesso attraverso le scale dal piano terra.

L'immobile viene venduto ''chiavi in mano'', completamente finito di impianti a norma, servizio igienico con antibagno e pavimento galleggiante per una migliore gestione e modifica degli impianti. Le vetrine poste nella parte frontale sono apribili a porta e/o vasistas e permettono l'accesso al balcone.

UBICAZIONE E CONTESTO

Il locale commerciale è posto al primo piano del Centro Commerciale Sinigalia a Castiglione delle Stiviere in via Mazzini, l'ex statale goitese , zona di massima importanza commerciale. La posizione de complesso risulta molto visibile e comodamente raggiungibile.

Mostra tutto

Nelle vicinanze

Trasporto pubblico Trasporto pubblico
Trasporto pubblico
500 m
Ricariche auto elettriche Ricariche auto elettriche
evway Piazzale Repubblica
900 m
McDonald’s di Castiglione delle Stiviere
1,0 Km
evway Donatori di Sangue
1,9 Km
Scuole Scuole
Scuola Elementare
720 m
Scuola Primaria San Pietro
1,3 Km
Scuola Media Don Milani
1,4 Km
Istituto Statale - Francesco Gonzaga
1,6 Km
Farmacia Farmacia
Erasmo Pigotta
1,8 Km
Farmacia La Gozzolina
2,7 Km
Ospedali Ospedali
Ospedale San Pellegrino di Castiglione
620 m
Sistema Polimodulare di REMS Provvisorie
2,6 Km
Supermercati Supermercati
Tosano
1,7 Km
Negozi Negozi
L'uomo boutique
580 m
Bar Bar
Bar
520 m
Ristoranti Ristoranti
Hostaria del Teatro
690 m
Ristoranti
700 m
Pizzabbestia
940 m
Fuori di pizza
1,1 Km
Mostra tutto

Caratteristiche

Rif.:
61147081
Piano:
1 di 2 (Piano medio)
Posti auto:
3
Balconi:
1
Condizionamento:
Autonomo
Ascensore:
No
Mostra tutto
Prezzo Prezzo
€ 240.000
Rata mutuo Rata mutuo
€ 1.132 / mese
Spese annue Spese annue
€ 1.000
Proponi il tuo prezzoProponi il tuo prezzo

Classe Energetica

Questo immobile è esente da classe energetica
Anno di costruzione:
2010
Riscaldamento:
Autonomo
Tipo impianto:
Ad aria
Tipo alimentazione:
Metano

Ti interessa visionare l'immobile?

Fissa un appuntamento  Fissa un appuntamento

Richiedi informazioni

Clicca su Leggi per aprire l'informativa
* Questi campi sono obbligatori

Calcola il tuo mutuo

Semplice e senza impegno
Anticipo

( % )
Mutuo

( % )

pochi semplici passi

inserisci i tuoi dati
Questionario completato
Grazie per aver richiesto un appuntamento senza impegno con un nostro Consulente del Credito e Assicurativo.

Hai inserito correttamente tutti i dati necessari e a breve riceverai una e-mail con un link da convalidare per inviare i tuoi dati.
Affiliato
La Commerciale Real Estate Srl
Via Mons. Moreni, 83 25018 Montichiari (BS)

Il nostro staff


  • Enrico Lopedoto
    Affiliato

  • Nicole Bosio
    Coordinatrice

  • Daria Elena Iacobescu
    Collaboratrice

  • Matteo Pia
    Collaboratore

  • Eric Tamassia
    Collaboratore
Via Mons. Moreni, 83 25018 Montichiari (BS)
Zona: Montichiari-Castiglione D/S-Carpenedolo-Calcinato P/San Marco
Mostra su mappa
Orari: Lunedì - Venerdì 9.00-12.30 / 15.00-19.30Sabato9.00-12.30
Affiliato
La Commerciale Real Estate Srl
Via Mons. Moreni, 83 25018 Montichiari (BS)

2025 Tecnocasa Franchising S.p.A. - P. IVA 08365160152 - Via Monte Bianco 60/A 20089 Rozzano (MI). Ogni agenzia ha un proprio titolare ed è autonoma. Privacy policy | Policy utilizzo | Cookie policy