Capannone in affitto

Montichiari, Zona Industriale - Fascia D'Oro
€ 5.500 / mese
2 locali 2 locali
1150 Mq 1150 Mq
2 bagni 2 bagni

Capannone in affitto

Montichiari, Zona Industriale - Fascia D'Oro

Questo immobile appartiene ad un'unità principale con metratura più ampia

Descrizione annuncio

COSA SAPERE DELL’IMMOBILE

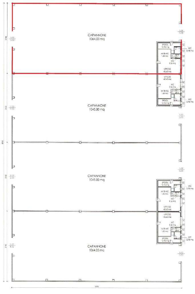
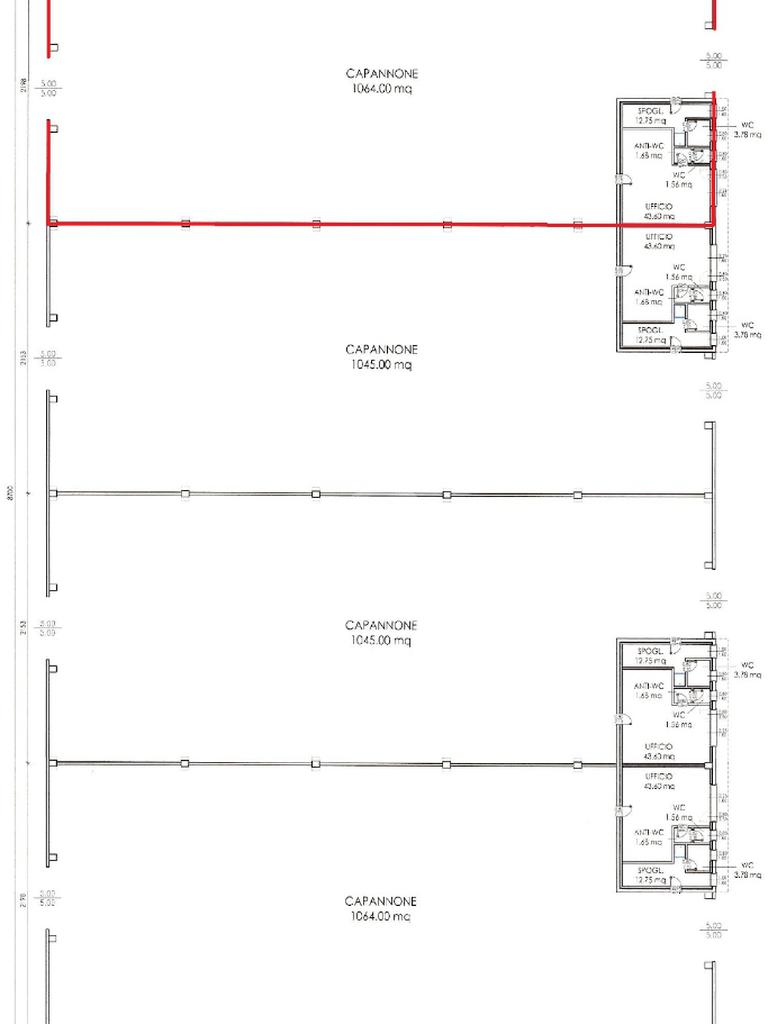
Montichiari, in posizione strategica proponiamo in locazione capannone industriale di circa 1150 metri quadrati in fase di costruzione, edificato su un lotto di 8300 metri quadrati. I lavori sono in fase di ultimazione, offrendo così la possibilità di insediarsi in uno spazio nuovo, moderno e funzionale.

DESCRIZIONE E PARTICOLARITA

Il capannone vanta un’altezza interna di 8,5 metri sotto trave, vi è anche la predisposizione delle mensole per il carroponte con portata di 15 tonnellate, garantendo massima versatilità operativa. L’immobile gode di due portoni industriali di 5 metri x 4,90 metri e comodo accesso carraio per agevolare l’ingresso e la movimentazione dei mezzi pesanti. L’impiantistica è a norma di legge vigente, dove troviamo, impianto elettrico 380 con potenza di 20KW, impianto di illuminazione, riscaldamento e raffrescamento presenti all’interno degli uffici e degli spogliatoi.

Completano la proprietà uffici moderni di circa 75 metri quadrati, spogliatoi, due servizi igienici e un’ampia area esterna che è possibile utilizzare esclusivamente per le manovre dei mezzi pesanti, essendo in condivisione con altre unità. L'immobile, essendo ancora in fase di costruzione, sarà ultimato e disponibile da Dicembre 2025.

UBICAZIONE E CONTESTO

La soluzione da noi proposta sorge a Montichiari, nella zona industriale denominata “Fascia d’Oro”, è una delle aree industriali e commerciali più strategiche della provincia di Brescia, caratterizzata da forte visibilità, collegamenti rapidi con le principali arterie stradali e un tessuto economico dinamico che attrae imprese di diversi settori.

Mostra tutto

Nelle vicinanze

Trasporto pubblico Trasporto pubblico
Trasporto pubblico
330 m
Montichiari - S.S. 236 Goitese, Mercato
Montichiari - S.S. 236 Goitese, Mercato
1,3 Km
Ricariche auto elettriche Ricariche auto elettriche
Garda Hotel
1,2 Km
Scuole Scuole
Istituto di Istruzione Superiore Don Milani
370 m
Scuole
960 m
Scuola Primaria Pio X
980 m
Farmacia Farmacia
Farmacia Farmacia Ex Prignachi Di Mimini Luigi
220 m
San Pancrazio
360 m
Farmacia Di Lena
740 m
Farmacia Comunale
970 m
Farmacia Comunale 2
1,3 Km
Ospedali Ospedali
Spedali Civili Brescia Montichiari
1,3 Km
Supermercati Supermercati
Penny Market
390 m
Coop
420 m
LIDL
540 m
Rossetto
900 m
Famila
1,3 Km
Negozi Negozi
Panificio Bertoni
140 m
Maffoni abbigliamento
140 m
Pasticceria Boifava
140 m
Veronica Fashion
150 m
Checkpoint
470 m
Bar Bar
Bar
190 m
Giada's
230 m
Gelateria Mozart
260 m
Spritz Chiosco Bar
360 m
My Tay
400 m
Ristoranti Ristoranti
Osteria Antica Colombina
120 m
La trattoria da Nicola e Salvatore
160 m
Ristorante Bar Pizzeria Al cervo
200 m
Pizzeria Aquila d'oro
280 m
La Bottega dei Sapori
300 m
Mostra tutto

Caratteristiche

Rif.:
61113747
Piano:
1 di 1 (Piano terra)
Posti auto:
10
Condizionamento:
Autonomo
Ascensore:
No
Riscaldamento:
Autonomo
Mostra tutto
Prezzo Prezzo
€ 5.500 / mese
Spese annue Spese annue
€ 0

Classe Energetica

Questo immobile è esente da classe energetica
Anno di costruzione:
2025
Riscaldamento:
Autonomo
Tipo impianto:
A radiatori
Tipo alimentazione:
Metano

Ti interessa visionare l'immobile?

Fissa un appuntamento  Fissa un appuntamento

Richiedi informazioni

Clicca su Leggi per aprire l'informativa
* Questi campi sono obbligatori
Affiliato
La Commerciale Real Estate Srl
Via Mons. Moreni, 83 25018 Montichiari (BS)

Il nostro staff


  • Enrico Lopedoto
    Affiliato

  • Daria Elena Iacobescu
    Responsabile

  • Matteo Pia
    Collaboratore

  • Melisa Tafilaku
    Coordinatrice

  • Eric Tamassia
    Collaboratore
Via Mons. Moreni, 83 25018 Montichiari (BS)
Zona: Montichiari-Castiglione D/S-Carpenedolo-Calcinato P/San Marco
Mostra su mappa
Orari: Lunedì - Venerdì 9.00-12.30 / 15.00-19.30Sabato9.00-12.30
Affiliato
La Commerciale Real Estate Srl
Via Mons. Moreni, 83 25018 Montichiari (BS)

2026 Tecnocasa Franchising S.p.A. - P. IVA 08365160152 - Via Monte Bianco 60/A 20089 Rozzano (MI). Ogni agenzia ha un proprio titolare ed è autonoma. Privacy policy | Policy utilizzo | Cookie policy