Capannone in vendita

Montichiari, Zona Industriale
€ 450.000
6 locali 6 locali
680 Mq 680 Mq
3 bagni 3 bagni

Capannone in vendita

Montichiari, Zona Industriale

Descrizione annuncio

COSA SAPERE DELL’IMMOBILE

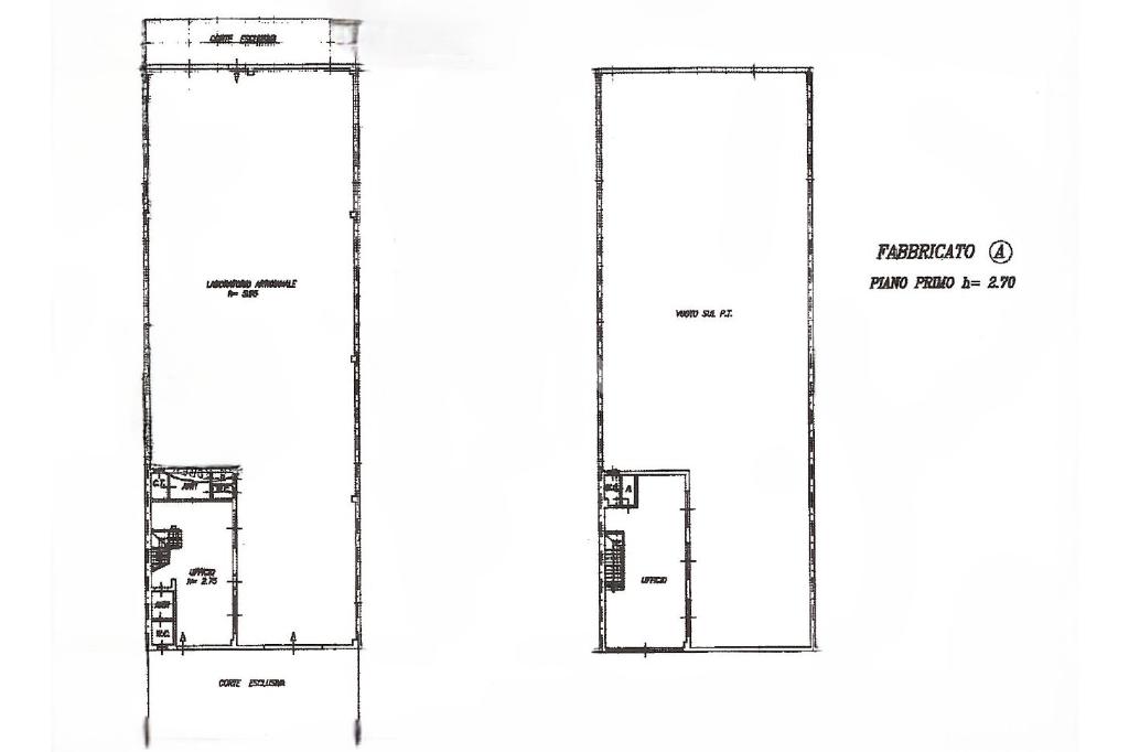
Montichiari, proponiamo in vendita laboratorio di circa 680 metri quadrati, dotato di uffici per un totale di circa 140 metri quadrati sviluppati su due piani, area esterna e servizi igienici.

DESCRIZIONE E PARTICOLARITA’

Proponiamo in vendita laboratorio di circa 680 metri quadrati coperti, ideale per attività produttive che necessitano di ampi spazi. L’immobile è dotato di un’area esterna esclusiva di circa 320 metri quadrati, completamente asfaltata e cintata, con cancello automatizzato che garantisce praticità di accesso e sicurezza.

Internamente sono presenti uffici per un totale di circa 140 metri quadrati distribuiti tra piano terra diviso in due locali ed il primo piano suddiviso in tre locali tutti comunicanti. Per gli uffici c’è la possibilità di accesso diretto e indipendente. Segnaliamo la presenza di 3 servizi igienici con antibagno.

Il laboratorio è completo di impianto elettrico 380, impianto di illuminazione, riscaldamento e raffrescamento sono presenti all’interno degli uffici. L’ampia area produttiva, con altezza interna di 6 metri al colmo, assicura versatilità d’uso e possibilità di stoccaggio. Sul retro, una tettoia coperta offre ulteriore spazio per depositare la merce.

UBICAZIONE E CONTESTO

La zona industriale di Montichiari, strategicamente posizionata vicino ai principali collegamenti viari e all’aeroporto, rappresenta un polo in forte crescita che ospita numerose realtà produttive, logistiche e commerciali. Un contesto dinamico e ben servito, ideale per lo sviluppo di attività industriali e imprenditoriali.

Mostra tutto

Nelle vicinanze

Trasporto pubblico Trasporto pubblico
Trasporto pubblico
1,4 Km
Montichiari - S.S. 236 Goitese, Mercato
Montichiari - S.S. 236 Goitese, Mercato
2,7 Km
Ricariche auto elettriche Ricariche auto elettriche
Garda Hotel
2,7 Km
Scuole Scuole
Scuola Primaria Pio X
1,8 Km
Scuole
1,8 Km
Istituto di Istruzione Superiore Don Milani
1,9 Km
Farmacia Farmacia
Farmacia Di Lena
1,4 Km
Farmacia Farmacia Ex Prignachi Di Mimini Luigi
1,6 Km
San Pancrazio
1,6 Km
Farmacia Comunale
2,4 Km
Farmacia Comunale 2
2,7 Km
Ospedali Ospedali
Spedali Civili Brescia Montichiari
1,7 Km
Supermercati Supermercati
LIDL
1,3 Km
Rossetto
1,4 Km
Penny Market
1,7 Km
Coop
1,7 Km
Famila
2,8 Km
Negozi Negozi
Checkpoint
1,6 Km
Pasticceria Boifava
1,6 Km
Veronica Fashion
1,6 Km
Maffoni abbigliamento
1,6 Km
Panificio Bertoni
1,9 Km
Bar Bar
piccolo circolo Ombra
690 m
Capita
720 m
Al Galeter
890 m
Spritz Chiosco Bar
1,5 Km
Be bop a lula
1,5 Km
Ristoranti Ristoranti
La Lanterna
1,4 Km
Rino's
1,4 Km
La Bottega dei Sapori
1,5 Km
Ristorante Boschetti srl
1,5 Km
Faro
1,5 Km
Mostra tutto

Caratteristiche

Rif.:
61120793
Piano:
1 di 2 (Piano su più livelli)
Posti auto:
5
Condizionamento:
Autonomo
Ascensore:
No
Riscaldamento:
Autonomo
Mostra tutto
Prezzo Prezzo
€ 450.000
Rata mutuo Rata mutuo
€ 2.127 / mese
Spese annue Spese annue
€ 0
Proponi il tuo prezzoProponi il tuo prezzo

Classe Energetica

F
F
F
F
F
F
F
F
F
EP globale non rinnovabile:
361.01 kW h/m² anno
EP globale rinnovabile:
2.82 kW h/m² anno
EP invernale del fabbricato:
EP estiva del fabbricato:
Anno di costruzione:
1990
Riscaldamento:
Autonomo
Tipo impianto:
Ad aria
Tipo alimentazione:
Metano

Ti interessa visionare l'immobile?

Fissa un appuntamento  Fissa un appuntamento

Richiedi informazioni

Clicca su Leggi per aprire l'informativa
* Questi campi sono obbligatori

Calcola il tuo mutuo

Semplice e senza impegno
Anticipo

( % )
Mutuo

( % )

pochi semplici passi

inserisci i tuoi dati
Questionario completato
Grazie per aver richiesto un appuntamento senza impegno con un nostro Consulente del Credito e Assicurativo.

Hai inserito correttamente tutti i dati necessari e a breve riceverai una e-mail con un link da convalidare per inviare i tuoi dati.
Affiliato
La Commerciale Real Estate Srl
Via Mons. Moreni, 83 25018 Montichiari (BS)

Il nostro staff


  • Enrico Lopedoto
    Affiliato

  • Daria Elena Iacobescu
    Responsabile

  • Matteo Pia
    Collaboratore

  • Melisa Tafilaku
    Coordinatrice

  • Eric Tamassia
    Collaboratore
Via Mons. Moreni, 83 25018 Montichiari (BS)
Zona: Montichiari-Castiglione D/S-Carpenedolo-Calcinato P/San Marco
Mostra su mappa
Orari: Lunedì - Venerdì 9.00-12.30 / 15.00-19.30Sabato9.00-12.30
Affiliato
La Commerciale Real Estate Srl
Via Mons. Moreni, 83 25018 Montichiari (BS)

2026 Tecnocasa Franchising S.p.A. - P. IVA 08365160152 - Via Monte Bianco 60/A 20089 Rozzano (MI). Ogni agenzia ha un proprio titolare ed è autonoma. Privacy policy | Policy utilizzo | Cookie policy