Capannone in vendita

Montichiari, Via Louis Bleriot - Fascia D'Oro
€ 3.031.500
1 locale 1 locale
2885 Mq 2885 Mq
19 bagni 19 bagni

Capannone in vendita

Montichiari, Via Louis Bleriot - Fascia D'Oro

Descrizione annuncio

COSA SAPERE DELL’IMMOBILE

Proponiamo in vendita capannone industriale di nuova realizzazione nel Comune di Montichiari (BS), con progetto personalizzabile. Una soluzione pensata per aziende di produzione e logistica che cercano spazi ampi, razionali e facilmente adattabili alle proprie esigenze operative, con una componente direzionale importante.

DESCRIZIONE E PARTICOLARITÀ

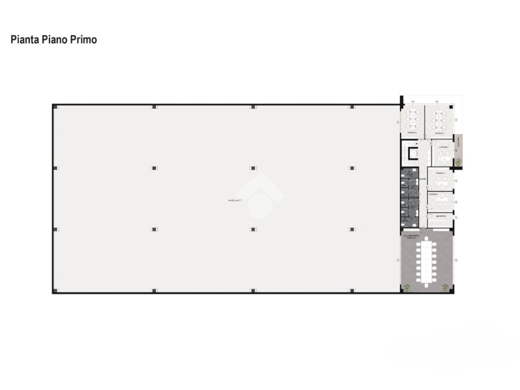
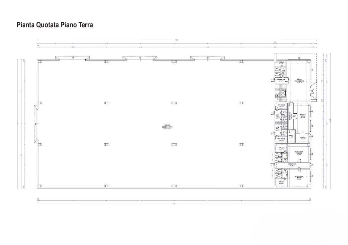
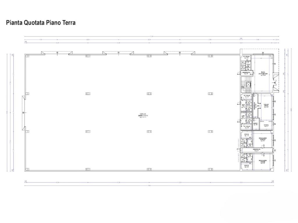
Il progetto prevede un fabbricato con superficie coperta complessiva di 2.885 mq, sviluppato con un’impostazione funzionale e moderna. Il corpo ha dimensioni di 35 metri di larghezza per 74 metri di lunghezza, configurazione che consente un’eccellente fruibilità degli spazi interni per lavorazioni, stoccaggio e movimentazione.

A completare la parte produttiva è prevista una zona uffici di grande impatto e rappresentanza, per un totale di 700 mq, distribuiti su due livelli: 350 mq al piano terra e 350 mq al piano primo. Questa superficie direzionale permette di organizzare in modo ordinato e separato aree amministrative, operative, sale riunioni o eventuale showroom, valorizzando la gestione dell’attività all’interno dello stesso complesso. L’immobile è inoltre dotato di area esterna di 1.320 mq, utile per la gestione della logistica quotidiana, con spazi destinabili a manovra, carico/scarico e parcheggi, in base alla configurazione finale scelta. Punto di forza dell’intervento è la personalizzazione del progetto, che consente di adattare layout e distribuzione degli ambienti alle necessità dell’utilizzatore finale.

UBICAZIONE E CONTESTO

L’unità immobiliatr si trova nel territorio di Montichiari (BS), in un contesto a vocazione produttiva e logistico-industriale, apprezzato per la comodità dei collegamenti. L’area beneficia della vicinanza alle principali direttrici stradali che collegano rapidamente i caselli delle autostrade A4 e A21, oltre alla prossimità con l’Aeroporto di Brescia-Montichiari “Gabriele D’Annunzio”, elemento di interesse per attività con necessità di movimentazione e logistica.

Mostra tutto

Nelle vicinanze

Scuole Scuole
Scuola Elementare
2,7 Km
Negozi Negozi
Nico
370 m
Bar Bar
Al Parco
2,8 Km
Ristoranti Ristoranti
Trattoria Fascia d'Oro
260 m
Ristoro 777
380 m
Mostra tutto

Caratteristiche

Rif.:
61164669
Posti auto:
38
Balconi:
1
Condizionamento:
Assente
Ascensore:
No
Riscaldamento:
Assente
Mostra tutto
Prezzo Prezzo
€ 3.031.500
Rata mutuo Rata mutuo
€ 14.332 / mese
Spese annue Spese annue
€ 0
Proponi il tuo prezzoProponi il tuo prezzo

Classe Energetica

Questo immobile è esente da classe energetica
Anno di costruzione:
2026
Riscaldamento:
Assente

Ti interessa visionare l'immobile?

Fissa un appuntamento  Fissa un appuntamento

Richiedi informazioni

Clicca su Leggi per aprire l'informativa
* Questi campi sono obbligatori

Calcola il tuo mutuo

Semplice e senza impegno
Anticipo

( % )
Mutuo

( % )

pochi semplici passi

inserisci i tuoi dati
Questionario completato
Grazie per aver richiesto un appuntamento senza impegno con un nostro Consulente del Credito e Assicurativo.

Hai inserito correttamente tutti i dati necessari e a breve riceverai una e-mail con un link da convalidare per inviare i tuoi dati.
Affiliato
La Commerciale Real Estate Srl
Via Mons. Moreni, 83 25018 Montichiari (BS)

Il nostro staff


  • Enrico Lopedoto
    Affiliato

  • Daria Elena Iacobescu
    Responsabile

  • Matteo Pia
    Collaboratore

  • Melisa Tafilaku
    Coordinatrice

  • Eric Tamassia
    Collaboratore
Via Mons. Moreni, 83 25018 Montichiari (BS)
Zona: Montichiari-Castiglione D/S-Carpenedolo-Calcinato P/San Marco
Mostra su mappa
Orari: Lunedì - Venerdì 9.00-12.30 / 15.00-19.30Sabato9.00-12.30
Affiliato
La Commerciale Real Estate Srl
Via Mons. Moreni, 83 25018 Montichiari (BS)

2026 Tecnocasa Franchising S.p.A. - P. IVA 08365160152 - Via Monte Bianco 60/A 20089 Rozzano (MI). Ogni agenzia ha un proprio titolare ed è autonoma. Privacy policy | Policy utilizzo | Cookie policy