Ufficio in vendita

Montichiari, Via Mantova
€ 700.000
15 locali 15 locali
677 Mq 677 Mq
4 bagni 4 bagni

Ufficio in vendita

Montichiari, Via Mantova

Descrizione annuncio

COSA SAPERE DELL'IMMOBILE
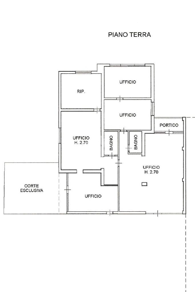
Il complesso direzionale che proponiamo in vendita è posizionato fronte strada di fortissimo passaggio ed è disposto su 3 piani con una superficie complessiva di 677 metri quadrati. L'immobile è dotato di 4 servizi igienici e parcheggi esclusivi.

DESCRIZIONE E PARTICOLARITA'
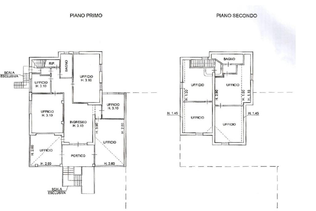
Costruzione degli anni 2000, le caratteristiche architettoniche, all'avanguardia rendono questo immobile molto moderno. La superficie coperta di 677 metri quadrati si sviluppa su 3 piani: un piano terra, un primo piano ed un piano ribassato, inoltre, segnaliamo la presenza di un garage di 30 metri quadrati.

Al piano terra troviamo un'ampia reception, 6 locali destinati ad uffici, un servizio igienico e un piccolo ripostiglio. Al primo piano troviamo 4 uffici e un servizio igienico, mentre al piano ribassato vi sono 5 uffici, un'ampia mensa e due servizi igienici entrambi i piani dispongono di un ingresso indipendente.

Frontalmente all'immobile troviamo un'area esclusiva, alla quale si accede tramite un cancello automatizzato, destinata ai parcheggi per i clienti/dipendenti, l'impiantistica è a norma di legge dove vi sono impianto elettrico, di illuminazione, impianto d'allarme, riscaldamento e raffrescamento tramite split e caloriferi.

La nostra proposta immobiliare è indicata per uffici di rappresentanza oppure come investimento immobiliare.

A seconda dell'esigenza, l'immobile potrebbe anche essere venduto arredato.

UBICAZIONE E CONTESTO

Il complesso direzionale proposto in vendita è ubicato in via Mantova a Montichiari, strada di forte percorrenza e di facile raggiungimento, di collegamento con Castiglione delle Stiviere.

Mostra tutto

Nelle vicinanze

Trasporto pubblico Trasporto pubblico
Trasporto pubblico
40 m
Montichiari - S.S. 236 Goitese, Mercato
Montichiari - S.S. 236 Goitese, Mercato
2,4 Km
Ricariche auto elettriche Ricariche auto elettriche
Garda Hotel
2,4 Km
Scuole Scuole
Scuola Primaria Pio X
340 m
Scuole
360 m
Istituto di Istruzione Superiore Don Milani
1,5 Km
Farmacia Farmacia
Farmacia Di Lena
410 m
San Pancrazio
780 m
Farmacia Comunale
1,1 Km
Farmacia Farmacia Ex Prignachi Di Mimini Luigi
1,2 Km
Farmacia Comunale 2
2,5 Km
Ospedali Ospedali
Spedali Civili Brescia Montichiari
240 m
Supermercati Supermercati
Rossetto
260 m
LIDL
720 m
Penny Market
770 m
Coop
780 m
Famila
2,5 Km
Negozi Negozi
Checkpoint
670 m
Pasticceria Boifava
1,1 Km
Veronica Fashion
1,1 Km
Maffoni abbigliamento
1,2 Km
Panificio Bertoni
1,3 Km
Bar Bar
Bar Sorriso
60 m
Be bop a lula
290 m
Spritz Chiosco Bar
810 m
Capita
1,1 Km
Giada's
1,2 Km
Ristoranti Ristoranti
Rino's
230 m
Ristorante Boschetti srl
350 m
La Lanterna
700 m
Faro
750 m
Dal Dosso Salamensa
760 m
Mostra tutto

Caratteristiche

Rif.:
61124355
Piano:
1 di 3 (Piano su più livelli)
Posti auto:
10
Condizionamento:
Autonomo
Ascensore:
No
Riscaldamento:
Autonomo
Mostra tutto
Prezzo Prezzo
€ 700.000
Rata mutuo Rata mutuo
€ 3.309 / mese
Spese annue Spese annue
€ 0
Proponi il tuo prezzoProponi il tuo prezzo

Classe Energetica

D
D
D
D
D
D
D
D
D
EP globale non rinnovabile:
315.47 kW h/m² anno
EP globale rinnovabile:
19.02 kW h/m² anno
EP invernale del fabbricato:
EP estiva del fabbricato:
Anno di costruzione:
2000
Riscaldamento:
Autonomo
Tipo impianto:
Ad aria
Tipo alimentazione:
Metano

Ti interessa visionare l'immobile?

Fissa un appuntamento  Fissa un appuntamento

Richiedi informazioni

Clicca su Leggi per aprire l'informativa
* Questi campi sono obbligatori

Calcola il tuo mutuo

Semplice e senza impegno
Anticipo

( % )
Mutuo

( % )

pochi semplici passi

inserisci i tuoi dati
Questionario completato
Grazie per aver richiesto un appuntamento senza impegno con un nostro Consulente del Credito e Assicurativo.

Hai inserito correttamente tutti i dati necessari e a breve riceverai una e-mail con un link da convalidare per inviare i tuoi dati.
Affiliato
La Commerciale Real Estate Srl
Via Mons. Moreni, 83 25018 Montichiari (BS)

Il nostro staff


  • Enrico Lopedoto
    Affiliato

  • Daria Elena Iacobescu
    Responsabile

  • Matteo Pia
    Collaboratore

  • Melisa Tafilaku
    Coordinatrice

  • Eric Tamassia
    Collaboratore
Via Mons. Moreni, 83 25018 Montichiari (BS)
Zona: Montichiari-Castiglione D/S-Carpenedolo-Calcinato P/San Marco
Mostra su mappa
Orari: Lunedì - Venerdì 9.00-12.30 / 15.00-19.30Sabato9.00-12.30
Affiliato
La Commerciale Real Estate Srl
Via Mons. Moreni, 83 25018 Montichiari (BS)

2026 Tecnocasa Franchising S.p.A. - P. IVA 08365160152 - Via Monte Bianco 60/A 20089 Rozzano (MI). Ogni agenzia ha un proprio titolare ed è autonoma. Privacy policy | Policy utilizzo | Cookie policy